43 (2024)
Ort: Kriens
Wettbewerbsbeitrag: Erweiterung Schulanlage Kuonimatt

 Projekttext
Aus einer neutralen Betrachtungsweise des Ortes und der bestehenden Schulanlage geht ein Beitrag hervor, der einen belebenden Dialog mit dem Konglomerat an Bestandsgebäuden und seiner Umgebung sucht. Diese Herangehensweise führt auf mehreren Entwurfsebenen zu vier Absichten:

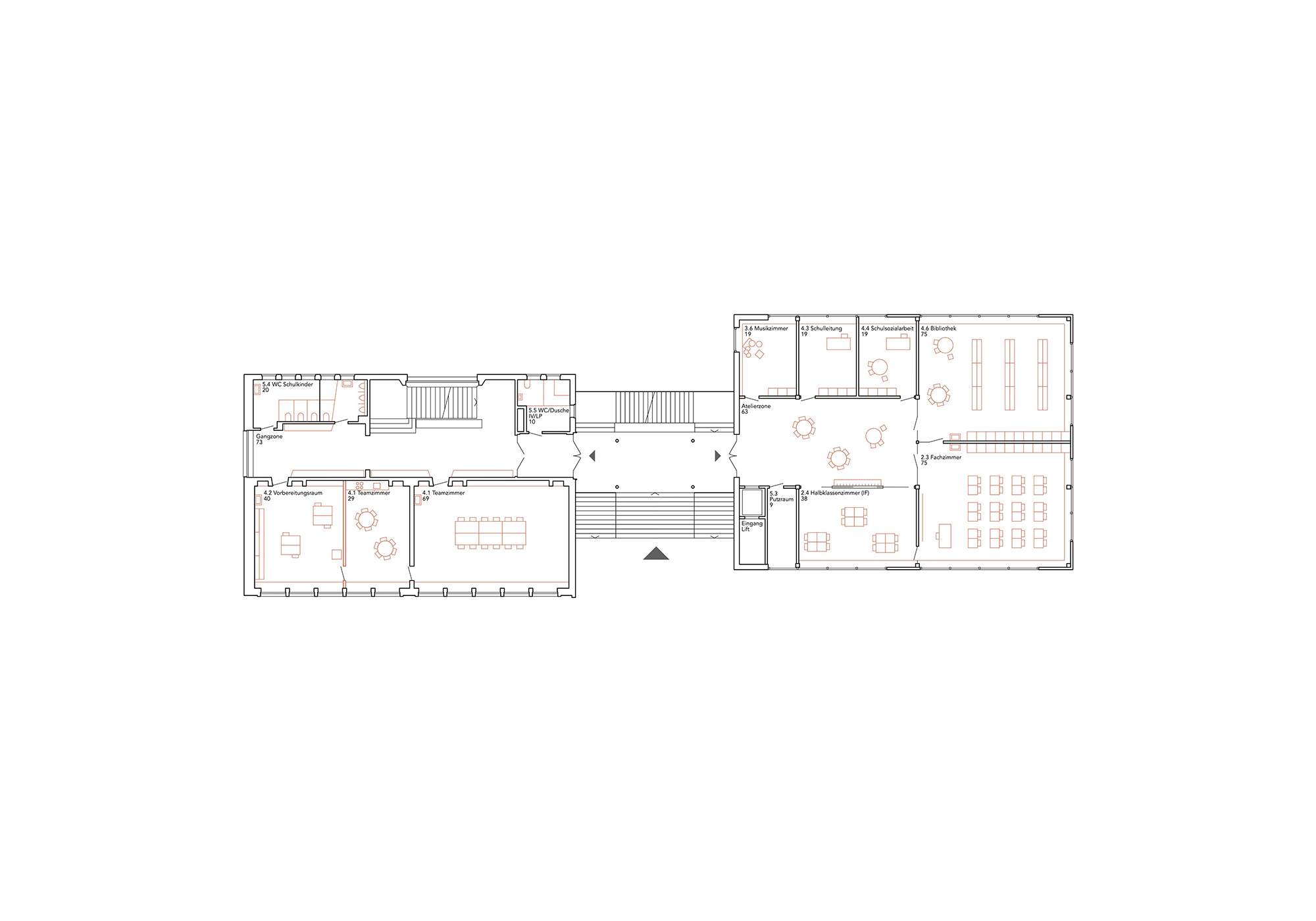
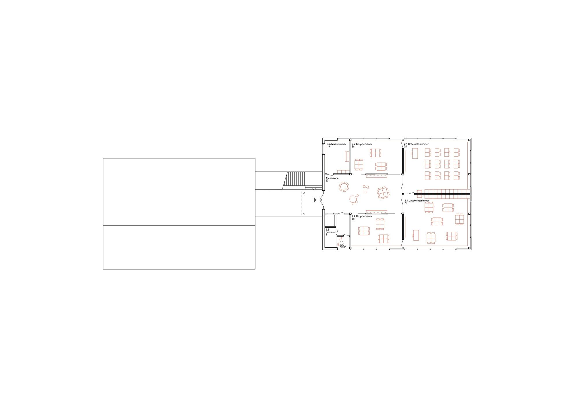
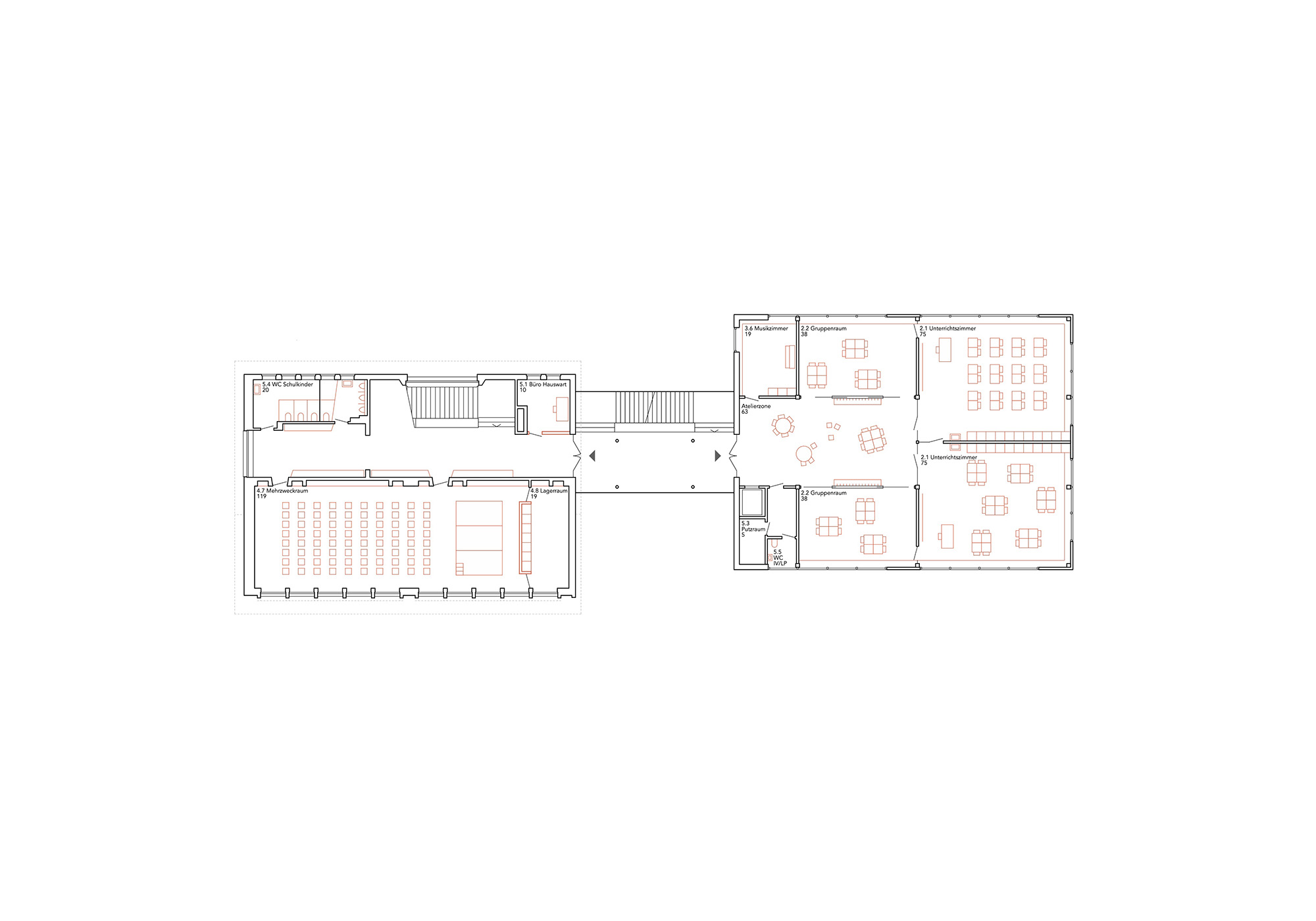
Gebäudepaar – Aus einem Punktbau wird ein Doppelpunktbau, der die Schulhausanlage in ihrer simplen orthogonalen, städtebaulichen Logik ergänzt. Der Neubau beabsichtigt nicht, einen räumlichen Abschluss des Areals zu definieren, sondern den Freiraum um die Gebäude weiterhin fliessen zu lassen. Der räumliche Abschluss bleibt der umgebungsprägenden Hecke vorbehalten. Durch Körnung und Proportion sucht der Neubau die Verwandtschaft zum Schulbau von Paul Essig.

Treppenpavillon als Mittler – Der jetzige Eingangspavillon weicht dem neuen Treppenpavillon. Als Reminiszenz ist dieser auf dem selben Fussabdruck aufgerichtet. Er verbindet den Bestands- und Neubau auf sämtlichen Ebenen. Als offener grosszügiger Schwellenraum, der Platz für Kommunikation und soziale Interaktion bietet, wirkt er als niederschwelliger Auftakt für das Gebäudepaar.

Sanfter Umgang im Bestand – Die minimale Eingriffstiefe im Bestandsbau bewahrt den ursprünglichen Charakter der Schule. Die bestehende Gebäudestruktur eignet sich einfach zur Umnutzung. Mit punktuellen Eingriffen kann neues Raumprogramm aufgenommen werden. Mit dem Erhalt vieler Bauteile wird graue Energie eingespart und dem Bestand eine sinnhafte Nutzung eingeschrieben. Neu- und Bestandsbau funktionieren symbiotisch, indem sie sich in ihrer Nutzung gegenseitig ergänzen.

Brunnenplatz als neue Mitte des Schulareals – Aus klimatischen- und vielfältigkeits Aspekten wird die heute zu grosse Asphaltfläche aufgebrochen, redimensioniert und versickerungsoffen gestaltet. Ein chaussierter Pausenplatz mit schattenspendenden Bäumen, einem plätschernden Schulbrunnen und zahlreichen Aufenthalts- und Sitzmöglichkeiten prägt die neue Mitte des Schulareals.

Landschaftsarchitekt: Johannes von Pechmann Stadtlandschaft