29 (2022)
Ort: Benken
Wettbewerbsbeitrag: Neubau Schulanlage, 1. Preis
Status: Bauprojekt

 Projekttext
In der Logik des Ortes überträgt der Entwurf die Bedingungen der Aufgabe in einen vielschichtig lesbaren Gebäudekörper, der mit dem Kontext in einen lebendigen Dialog tritt. Der lineare Baukörper legt sich entlang des vormaligen Ballfangzauns in die bestehende Hangkante. Diese Setzung unterstreicht vier städtebauliche Hauptabsichten:

Städtebaulicher Dialog im Dorfzentrum
Analog zum Schulhaus Oberdorf legt sich der Zaunkönig quer zum Hang. Über Körnung und Proportion tritt er in einen Dialog mit dem Schulhaus Räbli, der Kirche und dem Schulhaus Oberdorf. Ganz selbstverständlich ergänzt der Gebäudekörper das Schulensemble. Das Vierergespann stärkt die Mitte des Dorfes und markiert zugleich den öffentlichsten Ort von Benken. Zwischen den Vieren wird eine abwechslungsreiche Platzabfolge aufgespannt.

Ausgewogene Distanz
Die Solitärstellung des Schulhaus Räbli wird dank dem Rückbau des Annexbaus gestärkt und die städtebauliche Situation geklärt. Mit der Setzung des Neubaus an der Hangkante spannt sich ein grosszügiger Aussenraum zwischen den beiden Baukörpern auf. Diese offene Spiel- und Pausenfläche verbindet sich mit dem bestehenden Pausenplatz südlich des Schulhaus Räbli zu einem multifunktionalen Aussenraum für die Schulkinder und die Bevölkerung. Gleichzeitig lässt die grosse zusammenhängende Landreserve Spielraum für spätere Anpassungen am Schulhaus Räbli.

Ausschöpfen des Geländes
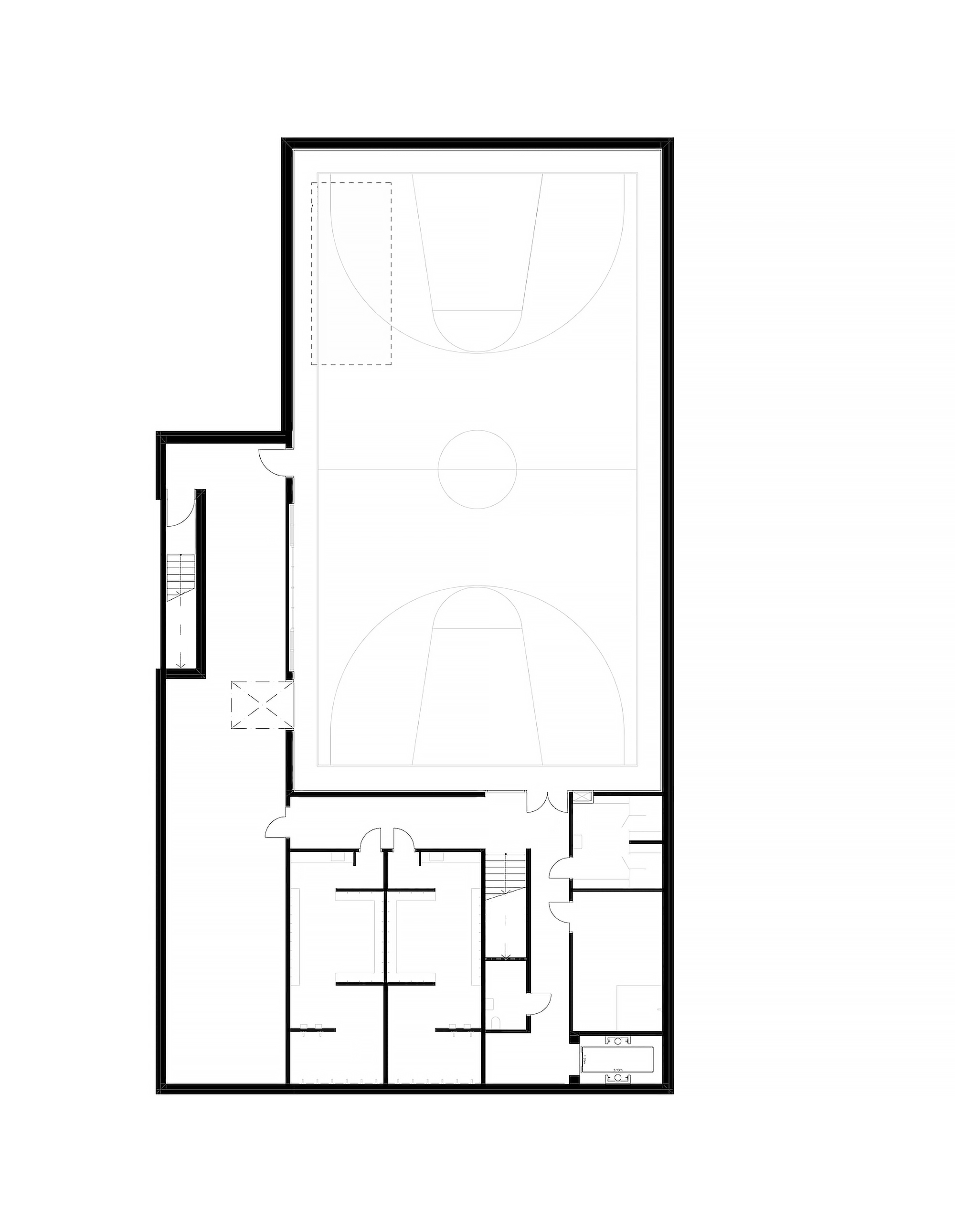
Die brachliegende Kirchenfläche unterhalb des Zauns wird in die Schulanlage miteinbezogen. Die Setzung entlang der Hangkante ermöglicht es, zwei erdgeschossige Zugänge auszuweisen. Während das Erdgeschoss, Niveau Pausenplatz, den Kindergärten vorbehalten ist, sind auf dem unteren Erdgeschoss, Niveau Kirchenweg, ein Vorplatz mit ebenerdigem Zugang zu den Turnhallennutzungen angeordnet. Dank der Aktivierung der ehemaligen Kirchenfläche entsteht vom Fussgänger- und Fahrradweg ein direkter Zugang zur Schulanlage.

Nahbares Schulhaus
Von der Pausenfläche tritt das Volumen zweigeschossig in Erscheinung. Zusammen mit der schützenden Dachform erscheint das Gebäude nahbar und ist auf die Massstäblichkeit der Kinder abgestimmt. Die fein gegliederte Holzfassade, filigrane Lisenen und die spielerische Anordnung der Ausfallmarkisen erzeugen einen leichten und einladenden Ausdruck. Der Baukörper vermittelt zwischen Innen und Aussen und schafft durchlässige Sichtbezüge. Das Innen verschmilzt mit dem Aussen, gefördert wird die Interaktion der Kinder mit dem vielfältig gestalteten Aussenraum.

Landschaftsarchitekten: Landformen AG, Kriens
Baumanagement: Hochbaumanagement RS2 AG, Schindellegi
Bau- und Holzbauingenieur: SJB Kempter Fitze, Eschenbach
HLS-Ingenieure: W + L Partner AG, Rapperswil-Jona
Elektro-Ingenieur: Faisst Partner, Eschenbach